 
			 
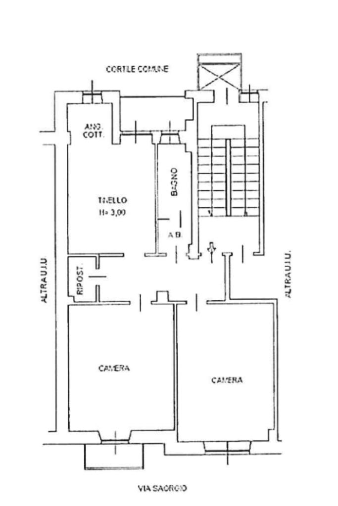
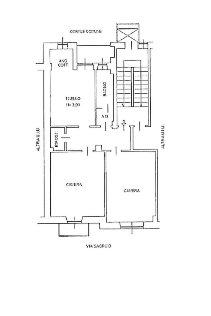
				Il palazzo di cinque piani si trova in via Saorgio, una delle arterie principali nel quartiere di Borgo Vittoria. La zona è conosciuta per i molteplici servizi che offre, sono diverse le attività commerciali, i piccoli supermercati e le scuole che la popolano. I residenti muovendosi comodamente a piedi possono raggiungere inoltre le fermate dei mezzi pubblici, le linee dei bus presenti percorrono la tratta diretta nel centro città. Il complesso ha una facciata in paramano e un portone d’ingresso in metallo e vetro ed è munito della cassettina esterna per la pubblicità. La casa internamente è stata ristrutturata e resa vivibile da subito, gli infissi sono stati dotati tutti dei doppi vetri in legno, la pavimentazione è omogenea su tutta la superficie. L’accesso avviene dalla porta blindata che si apre sul disimpegno che divide gli ambienti. Il tinello con angolo cottura è buone dimensioni permette di inserire una parte cucina lineare. Le camere da letto sono due, entrambe luminose. Il bagno con finestra è stato ben sfruttato, al suo interno vi sono tutti i sanitari e il box doccia. Termina la soluzione la cantina al piano interrato. Il riscaldamento centralizzato con le termovalvole permette una buona gestione dei consumi.
Ti interessa visionare l'immobile?